Kellogg Concepts designed a complete remodel of an existing Master Bathroom to provide a new up-scale layout and finishes. The existing Bathroom was completed in 1990 with an open plan entry from the Master Bedroom, L shaped vanity with ceramic tile countertop, and mission style all-tile shower enclosure.
Existing Master Bathroom:
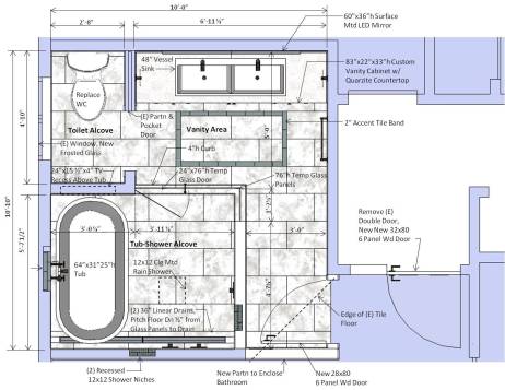
The intent on the Master Bathroom remodel was to include an organized clean modern farmhouse look including a new entry door to separate the Bathroom from the Master Bedroom. The design takes advantage of the geometry of the existing space to provide a unified tub-shower alcove with a freestanding soaking tub, a double shower with ceiling mounted rain-shower, and frameless glass enclosure. A linear custom vanity with double vessel sink and a contemporary LED back-lit mirror is also included. The existing toilet alcove was reused to create a framed enclosure and entry to the tub-shower alcove.
New Master Bathroom Floor Plan:
New Master Bathroom selected products include:
- 12×24 Bedrosian Calacatta Floor and Wall Tile, with 2×8 Mosaic Glass Accent Tile
- 12×12 Schluter Systems Shower Niches with Schluter Jolly satin nickel metal edge trim
- 64x31x25 Winifred Resin Freestanding Tub
- Delta Cassidy Tub Filler & Hand Shower and Sink Faucets with oil-rubbed bronze finish. And two Delta Pivotal 14 Shower Systems with a Full Rain Shower Head.
- Custom Farmhouse Vanity Cabinet with blue-gray glazed finish, Quartzite countertop, Mosaic Glass Accent Tile backsplash, and Eridanus 48” double vessel sink.
- 60×36 Topcraft Wall Mounted Mirror with dimmable LED back-light and defogger
Designed by,
James Kellogg
Principal, Kellogg Concepts




