Kellogg Concepts designed a complete remodel of an early 20th century California Craftsman Bungalow house in Oakland. The existing house is a two story split-level 3 bedroom home with the split level facing to the rear yard. The split-level causes a challenge, because it does not provide direct access from either of the split levels to the backyard.
Existing Front Elevation:
The project included complete remodel of the first floor Kitchen, second floor Master Bedroom, and a new Backyard Deck and Stairs leading to a new private patio.
New Site Plan 3D View:
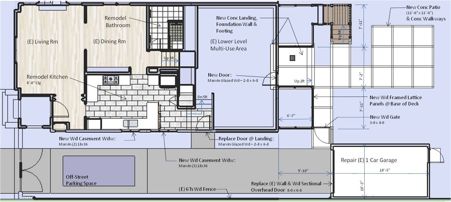
The first floor Kitchen remodel resolved complicated circulation through the Kitchen from the first floor entry foyer, dining room and stairway to the upper level and Master Bedroom, as well as steps down from the Kitchen to the lower level multi-use room and exterior entry door to the side yard and existing garage. The deck design created a connection between both the upper and lower split levels to the back yard. The new Backyard Deck and Stairs tie together access to the rear yard and patio from the upper split-level deck and the lower split-level from a new glazed door and landing 2 steps down from the yard.
New First Floor Plan:
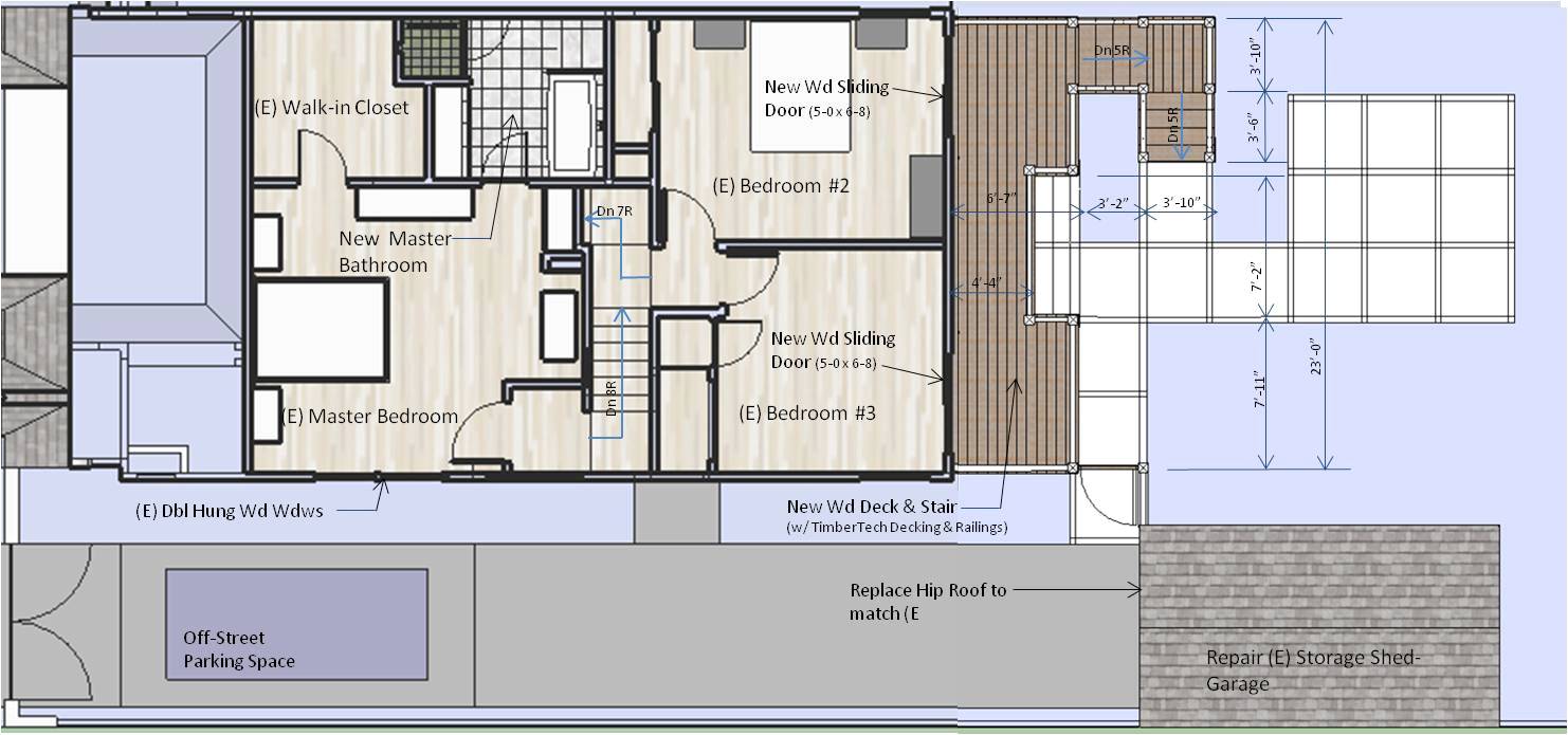
The second floor remodel includes a reorganization of the Master Bedroom and a remodeled Master Bathroom, and new wood sliding doors from the upper split-level bedrooms to the new Backyard Deck and Stairs.
New Second Floor Plan:
The Backyard Deck and Stairs includes an upper level deck about 6 ft above the elevation of the rear yard, and a lower level landing about 15 in below the yard, providing access to the backyard from both split levels. The limited vertical space below the deck is enclosed with framed wood lattice panels to provide structure tied to the ground and lightness. The deck utilizes the available space between the existing house and garage to provide access from the garage and side yard and privacy for backyard patio and landscaped area.
New Backyard Deck and Stairs:
The existing Garage required significant repair of a deteriorated roof and structure. An alternative design was developed to provide an open carport pergola with an integrated storage shed. The design included a wood trellis roof and wood lattice wall facing to the new patio, following the style introduced for the new deck as well as meeting the Planning Code requirements for a covered off-street parking space in the same position as the existing garage.
Alternate Design – Carport Pergola:
The Kitchen remodel included custom cabinets with built-in refrigerator, wall oven, wine cooler, and breakfast counter with view windows to the side yard. The layout includes a new pantry closet under the existing stair to the upper level, and space for steps down to the new entry door landing and steps to the lower level multi-use room.
New Kitchen Floor Plan:
The Master Bathroom remodel includes a new freestanding tub, frameless rain-glass toilet privacy panel, and utilizing the existing Master Bedroom vaulted ceiling to create a walk-in shower and vanity cabinet niche with a soffited surround.
New Master Bathroom:
Designed by,
James Kellogg
Principal, Kellogg Concepts











