Kellogg Concepts developed the masterplan for a new Garage-Workshop and Accessory Dwelling Unit combined with a historic farmhouse in Napa, California. The existing farmhouse was originally built in the late 19th century and expanded to a one-story home with a bedroom loft in the 1920s. The farmhouse is a bungalow style and recognized as a Napa Architectural Heritage design and includes a multi-level gable roof, an enclosed front sun porch, and a distinctive front roof dormer. The materials include horizontal shiplap siding at the base combined with cedar shingle exterior skin, and traditional double hung wood windows.
Historic Napa Farmhouse

The property is gently sloping north to south and includes a large side yard to the North of the farmhouse, a large rear yard bounded on the north side by a new cantilevered wood grape arbor extending the length of the property, and an old single car garage and storage shed on the south side. This provided an opportunity for the masterplan to replace the old structures with a new Garage-Workshop in the north side yard and a new ADU to the southwest of the historic farmhouse which together with the wood grape arbor, frames a large private rear yard cloister garden shared by each of the three structures.
New Garage-Workshop and ADU Masterplan

The architectural style of the new Garage-Workshop and ADU reflects the style of the traditional farmhouse to unify the scale and character of the three structures. Elements include simple rectangular forms, high pitched gable roofs, and fenestration with punched windows, contemporary dormer windows, and handmade swinging garage doors.
The exterior materials include farmhouse style horizontal shiplap siding that tie together the new and existing structures.

New Garage-Workshop:
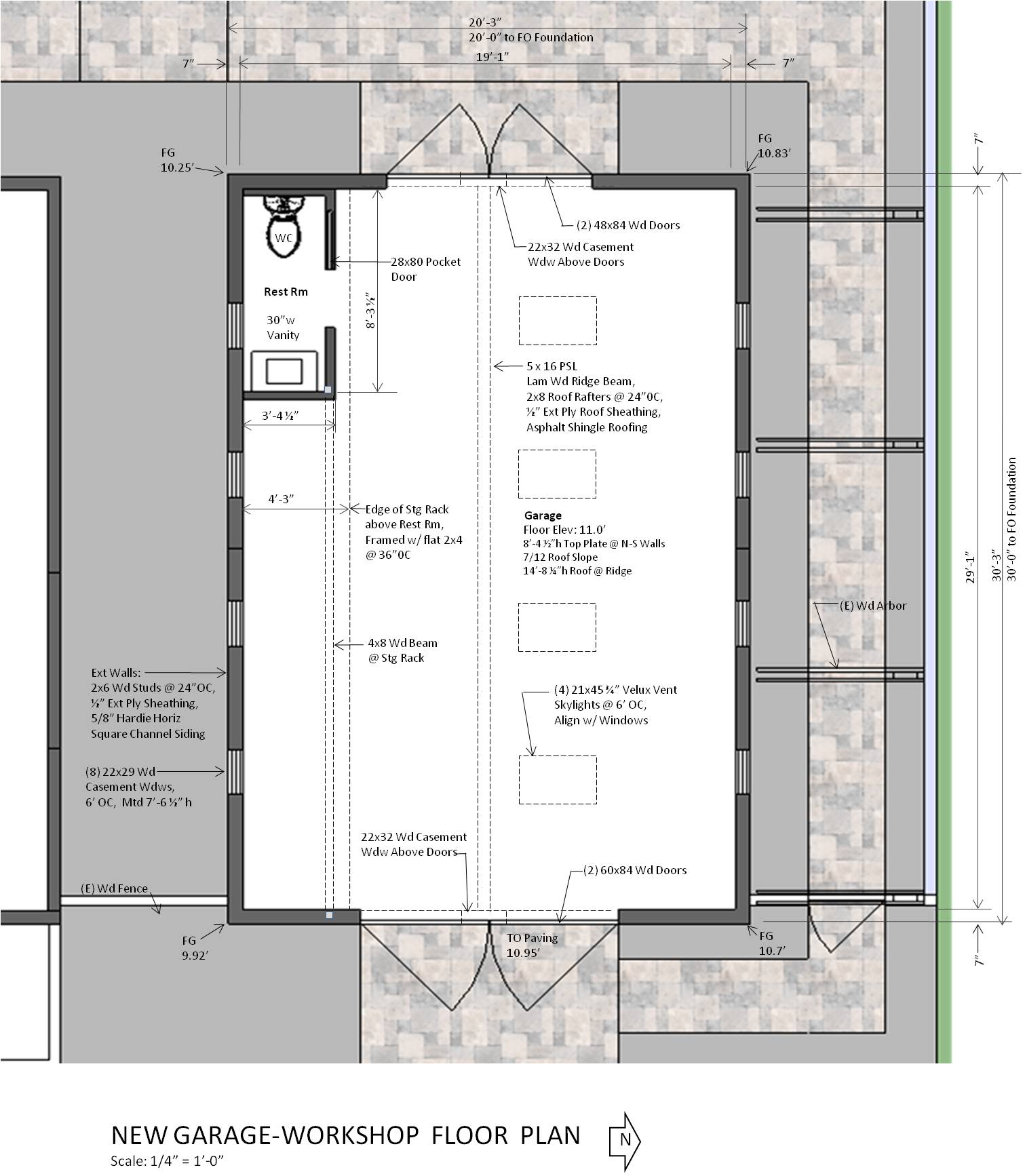
The new garage is designed to be a 612sf simple rectangular form large enough for two full size cars and workshop space that opens onto the rear yard cloister garden. The garage is sited in the side yard north of the existing farmhouse, set back 20 ft from the front property line, 6 ft back from the Farmhouse front porch, and 7 ft from the north property line allowing space for the wood grape arbor.
New Garage-Workshop Floor Plan

The 8/12 slope gable roof reflects the high peaked roof of the farmhouse and is framed with a continuous Parallam ridge beam creating an open high-ceiling interior workspace. The fenestration includes handmade pairs of large swinging wood barn style doors on the front and back elevations, punched wall openings with slightly recessed casement windows on the side elevations, and Velux motorized roof skylights aligned with the windows that create natural ventilation for the workshop with the open swinging barn style doors.
The exterior materials include farmhouse style horizontal shiplap siding, wood corner trim, window and door casing, and continuous mud sill trim that ties the new and existing structures together into a unified design.
Garage-Workshop East Elevation


Garage-Workshop West Elevation


New Accessory Dwelling Unit:
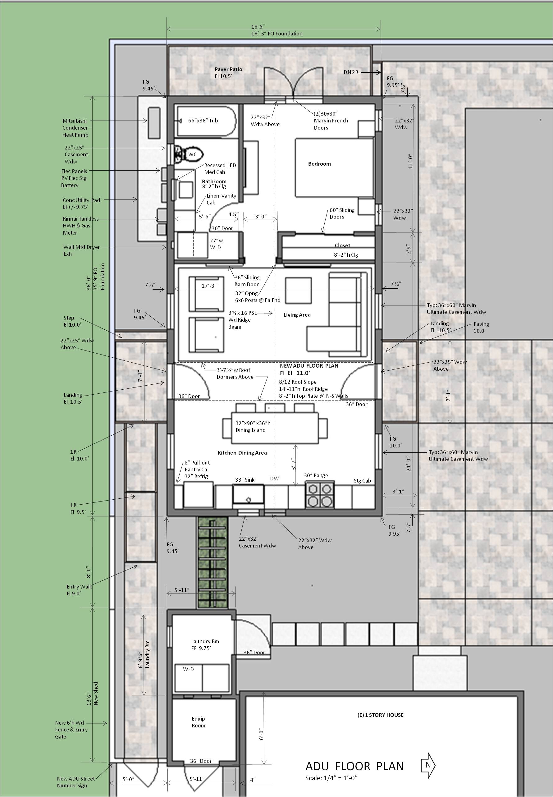
This new ADU is a modest size 665sf one bedroom unit with an open plan living-dining-kitchen space, designed in a traditional farmhouse style and a simple rectangular form. The ADU is sited in the southwest corner of the property with a 5 ft side and rear yard setback maximizing the adjoining rear yard cloister garden. The open plan living space is divided from the kitchen-dining space by a circulation transept connecting the south main entry door with the north door accessing the rear yard cloister garden. The bedroom opens onto a private patio with a double French door and includes a multi-use bath-laundry room space. The open plan layout includes an interior sliding barn door separating the living and bedroom spaces and also providing open view from east to west through the entire unit. The site plan also includes a new small laundry-equipment structure attached to the existing farmhouse southwest corner that replaces the old single car garage. The structure is designed to match the style of the new ADU and be part of the walkway to the ADU front entry. Phase 2 of the masterplan will include expansion of the existing farmhouse to the west to align with the laundry-equipment structure.
New ADU Floor Plan

The ADU is structured with an 8/12 slope gable roof, copying the new garage structure, framed with a continuous Parallam ridge beam creating an open high ceiling living space that enhances the modest size floor plan. The roof framing includes raised roof dormers over the circulation transept and casement windows over the north and south entry doors. The architectural fenestration includes farmhouse style punched openings with slightly recessed casement windows and French style entry doors and double French doors in the bedroom leading to a private patio.
New ADU North Elevation



The exterior materials include farmhouse style horizontal shiplap siding, wood corner trim, window and door casing, and continuous mud sill trim replicating the new Garage materials and their relationship to the historic farmhouse.
The entry to the ADU is located on the south elevation with access via the existing driveway to a private entry gate then a linear stepped walkway past the new laundry-equipment structure and privacy planting arbor to an elevated landing at the entry door.
New ADU South Elevation

New ADU Entry Walkway


The south main entry includes a farmhouse style 36in extended eave, matching the slope of the roof dormer, over the entry door and landing that complies with the required 5ft building structure setback from the property line.

New ADU Interior Design:
This ADU interior design includes a cathedral ceiling running the length of the unit, with a raised ceiling over the circulation transept and dormer windows, and a horizontal soffit at the ridge to mount recessed multi-zone heat pump distribution boxes. The living-kitchen-dining space includes very large casement windows adjoining the circulation transept and together with the dormer and ridge windows provides maximum interior light for a modest size space. And the kitchen is an open linear layout along the east wall with a farmhouse style dining table-worktop island. The bedroom includes a continuation of the cathedral ceiling, punched casement windows adjoining the bed and double French doors leading to the private patio.
New ADU Living-Dining Space


New ADU Bedroom

Architectural Materials and Detailing:
The new ADU and Garage structures are slab on grade floor, standard stud framing with high-R value batt insulation and TrusJoist Parallam ridge beams. The ADU floor level is elevated 12-24in from the existing grade to protect against potential 100-year flooding. The Garage floor level is set to align with the high point of existing grade at the northwest corner and minimize the slope of the new driveway to the east entry door.
The exterior materials include Hardie Board composite Artisan Square Channel Siding, exterior corner and mud sill trim, window and door casing, facias and venting soffit panels. Fenestration includes Marvin Ultimate Casement windows and French doors with aluminum exterior cladding and Velux deck-mounted venting skylights for the garage. Standard asphalt roof shingles are utilized throughout the complex.
The traditional farmhouse style of the new structures is enhanced with the use of 6in half-round galvanized steel gutters and 3in diameter downspouts, and classic exterior goose-neck metal downlights.
The ADU kitchen appliances and heating systems are all electric, including application of a Mitsubishi Multi-zone Heat Pump system with EZ-fit recessed ceiling mounted air distribution boxes.



Exterior Eave, Window, and Trim Details


Designed by,
James Kellogg
Principal, Kellogg Concepts