Kellogg Concepts provides planning services that include strategic planning, evaluating project options, programming, and budgeting for residential and commercial office projects.  Following are examples of planning expertise and services.

Blue Line

 

605 Mira Vista Report

Project Planning Report:  Kellogg Concepts provides services to evaluate Planning Requirements applicable to residential property improvements. This report is an example of analyzing guidelines for siting and setbacks for a new garage, which required providing a survey of equivalent neighborhood parking verifying an outcome advantageous for the proposed project.  More information about the design for the project has also been posted.

Blue Line

Moretti Planning Montage

Project Design Options:  Kellogg Concepts provides services to evaluate options for improvements to residential property including space utilization studies, options for expansion and remodeling, exploration of products and materials that respect existing context as well as sustainability, and cost analysis that yields that the best value for the  project.

Blue Line

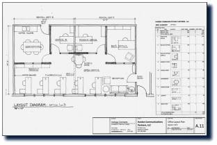
Harden Office Plan (2)

Programming and Space Planning: Kellogg Concepts provides services to articulate program goals,  investigate space utilization and layout options,   and budget analysis and procurement options for commercial office projects. This example includes successful programming and space planning for Harden Communications Partners, Oakland.

Blue Line

PiedmontPlanningCode_NEWPiedmont Planning and Design Review:  James Kellogg served as a member of the Piedmont Planning Commission for over 7 years,  and has thorough understanding of the Piedmont Municipal Zoning Code and Residential Design Review Guidelines.  Kellogg Concepts provides guidance for carefully strategizingd submittals and presentations to the Planning Commission to obtain Variances and Design Review approvals to achieve success for each project.

Blue Line

PiedmontGeneralPlan_NEW

General Plan DevelopmentKellogg Concepts offers  development of plans and reports for individual and group development projects.  As a member of the Piedmont Planning Commission, James was directly involved in strategic planning for the 10-year Piedmont General Plan and Housing Element, 2009.   And received Piedmont Recognition of Community Service in 2013 for accomplishments with the Planning Commission.

Blue Line